Spring 24

ADA OFFICE

ADA OFFICE

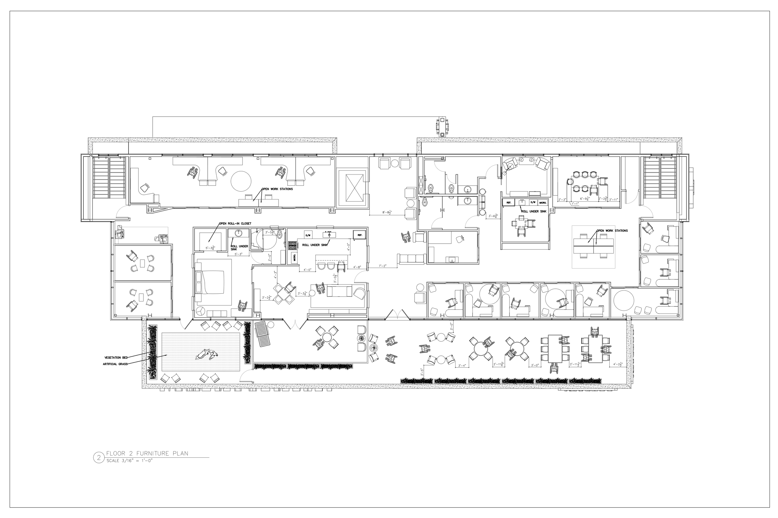
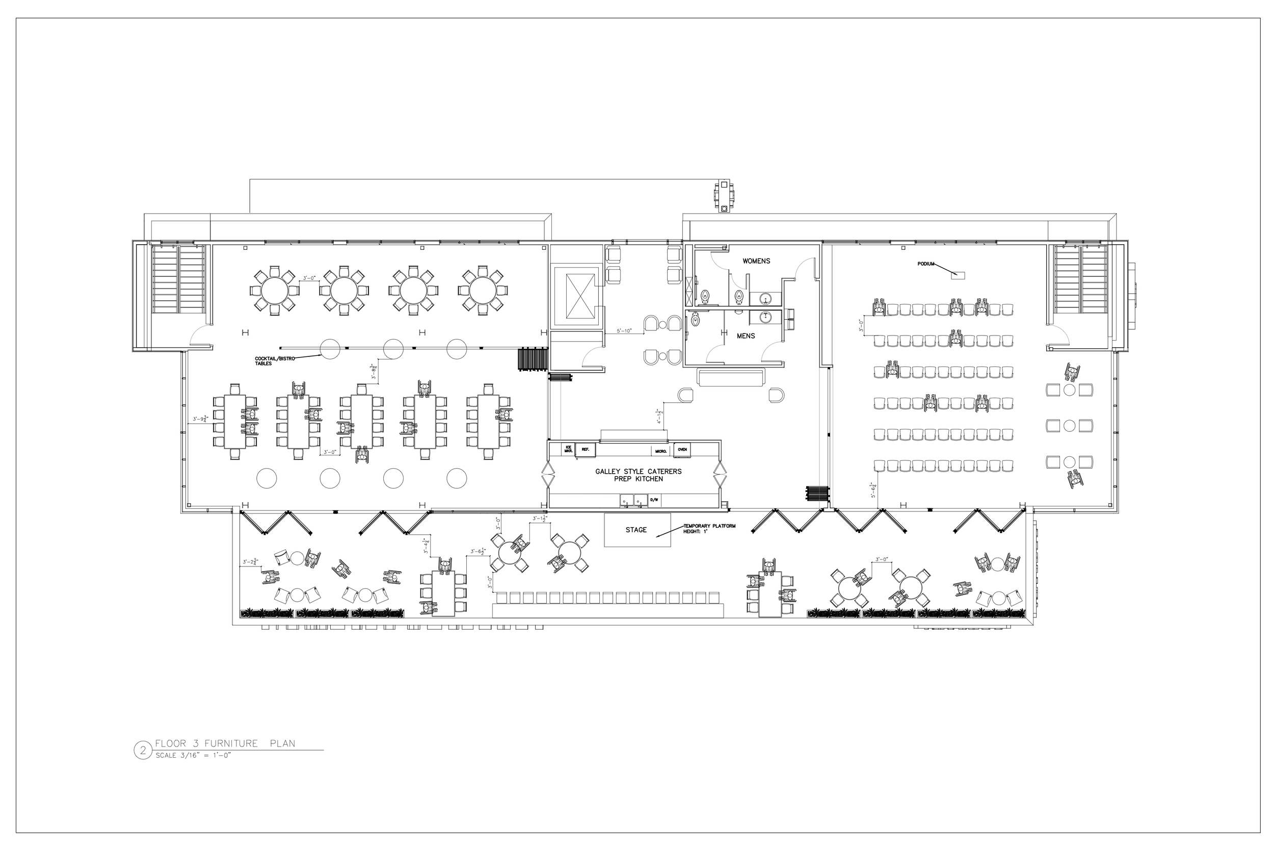
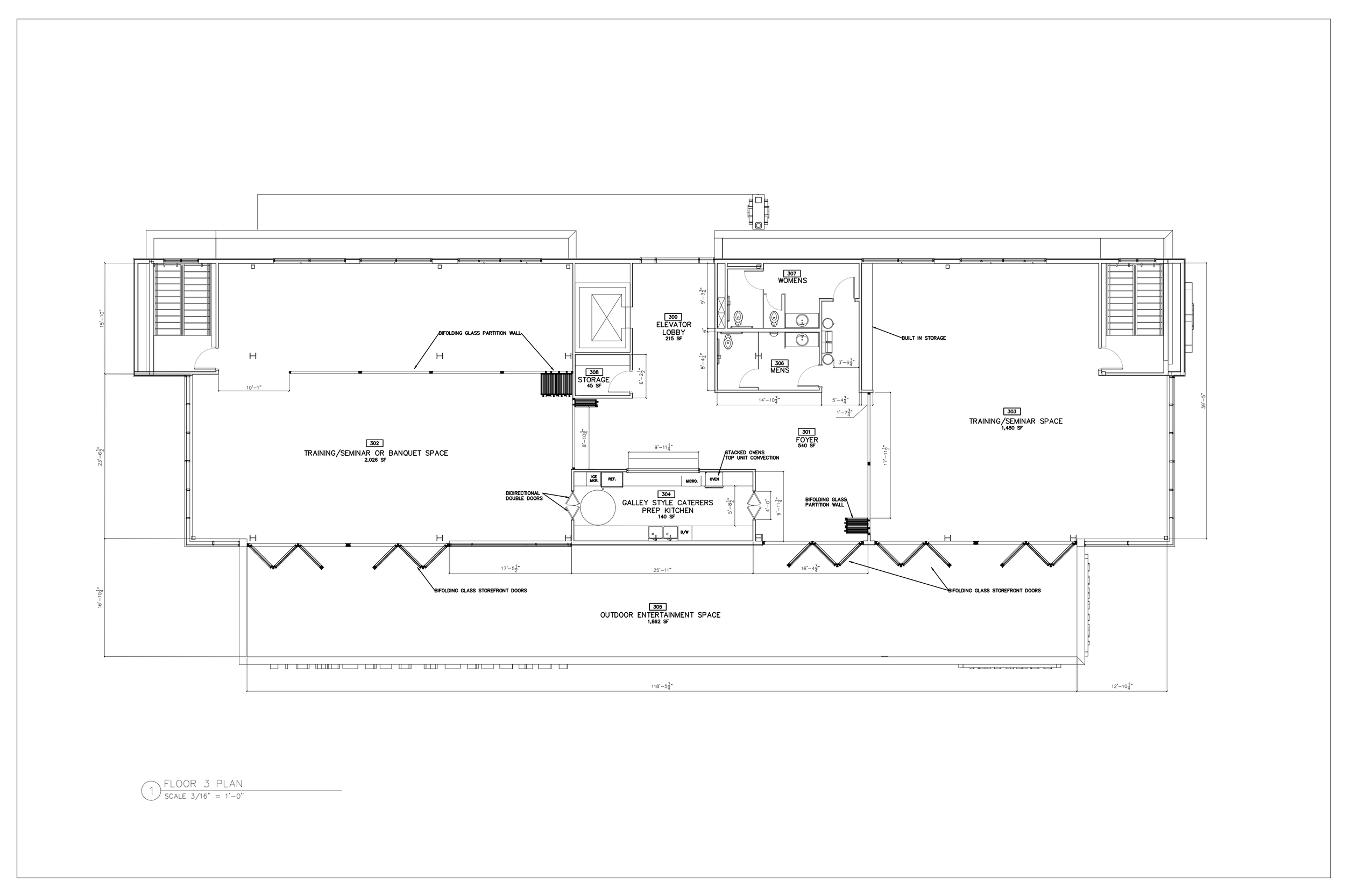
ADA Office is a project I completed during my second year of design school for my studio class focused on inclusive design. The scope of the project was to redesign ADA Collaborative Inc. Office Building - a 3 story commercial office space located in Nashville, TN to meet and exceed ADA (Americans with Disabilities Act) requirements while embodying the values and ethos of ADA Collaborative Inc.

Concept:

The intent of the design is to create an environment that champions accessibility, functionality, and aesthetics.

Every aspect of the building, from its interior design, space planning, furniture and material selections, and lighting reflects a commitment to inclusivity and user-friendliness. An accessible environment is not only a legal requirement but also a moral imperative and a strategic advantage in fostering a diverse and vibrant workplace culture. 

Previous
Previous

Mixed Media

Next
Next

ADA Hitch